
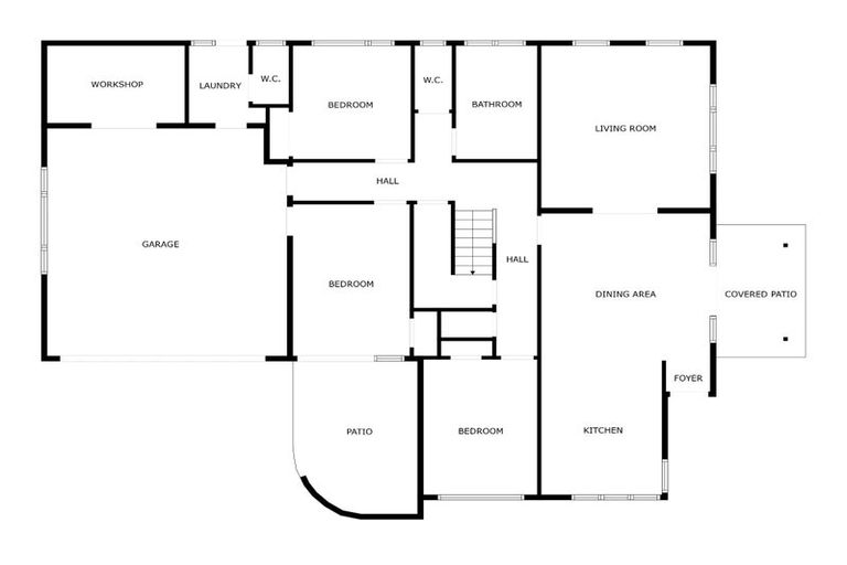
257 Kimbolton Road, Feilding, 4702 is a Residential property built in 1999 with 5 bedrooms, 2 bathrooms and 3 parking spaces. The property is estimated to be valued in the range of $700,000 to $750,000.
The property last sold on 28 November 2024 for $700,000. It was sold by Harcourts Palmerston North. On 1 July 2025, 257 Kimbolton Road, Feilding, 4702 had a Rating Valuation with a Capital Value of $700,000, Land Value of $285,000 and Improvement Value of $415,000.
| Date | Type | Price | Agent/Agency |
|---|---|---|---|
| 28 Nov 2024 | SOLD | $700,000 | |
| 6 Nov 2024 | ENQUIRIES OVER | $739,000 | Tim Cook of Team Manawatu Realty Limited, (Licensed: Reaa 2008) |
| 7 Nov 2005 | SOLD | $355,000 |
Lot 2 Deposited Plan 90420
There are no similar properties in the area that are listed for sale or recently sold.