
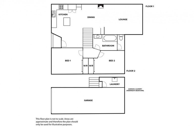
151a Manchester Street, Feilding, 4702 is a Residential property built in 1973 with 2 bedrooms, 1 bathroom and 1 parking space. The property is estimated to be valued in the range of $450,000 to $500,000.
The property last sold on 16 December 2020 for $425,000. On 1 July 2025, 151a Manchester Street, Feilding, 4702 had a Rating Valuation with a Capital Value of $460,000, Land Value of $195,000 and Improvement Value of $265,000.
| Date | Type | Price | Agent/Agency |
|---|---|---|---|
| 16 Dec 2020 | SOLD | $425,000 | |
| 11 Feb 2016 | SOLD | $184,500 | Robyn Dagger of Team Manawatu Realty Ltd Harcourts, Feilding |
| 10 Feb 2016 | ASKING PRICE | $179,000 | Robyn Dagger of Team Manawatu Realty Ltd Harcourts, Feilding |
| 15 Apr 2014 | SOLD | $155,000 | Jenny Munro of Re/Max Go For Sold Mreinz |
| 15 Apr 2014 | SOLD | $190,000 | Jenny Munro of Re/Max Go For Sold Mreinz |
| 10 Aug 2013 | ASKING PRICE | Price Not Disclosed | Jenny Munro of Re/Max Go For Sold Mreinz |
| 10 Aug 2013 | ASKING PRICE | Price Not Disclosed | Jenny Munro of Re/Max Go For Sold Mreinz |
| 2 Dec 2003 | SOLD | $109,000 |
Lot 1 Deposited Plan 34995
There are no similar properties in the area that are listed for sale or recently sold.