
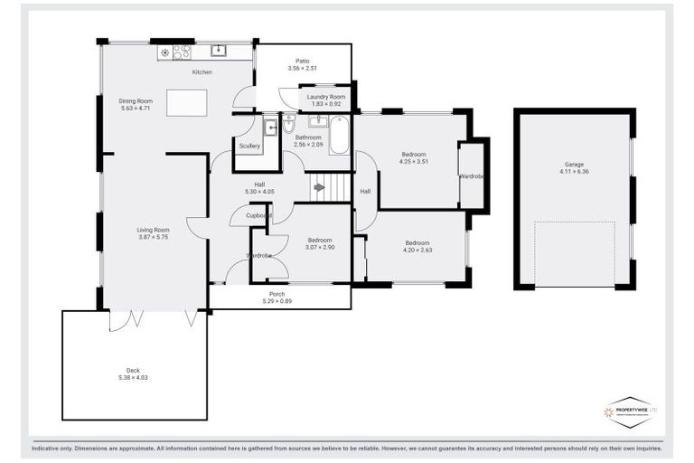
162 Queen Street West, Levin, 5510 is a Residential property built in 1960 with 3 bedrooms, 1 bathroom and 1 parking space. The property is estimated to be valued in the range of $500,000 to $550,000.
The property last sold on 24 February 2021 for $613,000. It was sold by Team Group Realty Limited, Levin Office. On 1 August 2025, 162 Queen Street West, Levin, 5510 had a Rating Valuation with a Capital Value of $510,000, Land Value of $195,000 and Improvement Value of $315,000.
| Date | Type | Price | Agent/Agency |
|---|---|---|---|
| 19 Mar 2026 | ENQUIRIES OVER | $520,000 | Peter Heald of Professionals Levin, (Licensed: Reaa 2008) |
| 26 Feb 2026 | Rented | $570 | Casey Gough of Team Group Rentals |
| 3 Dec 2024 | Rented | $590 | Casey Gough of Harcourts Team Group Rentals |
| 11 Sep 2024 | ASKING PRICE | $559,000 | Alice Pearson of Professionals Lower Hutt (Redcoats Ltd Mreinz), (Licensed: Reaa 2008) |
| 24 Feb 2021 | SOLD | $613,000 | |
| 1 Jan 1930 | SOLD | $0 |
Lot 1 Deposited Plan 591713
There are no similar properties in the area that are listed for sale or recently sold.