
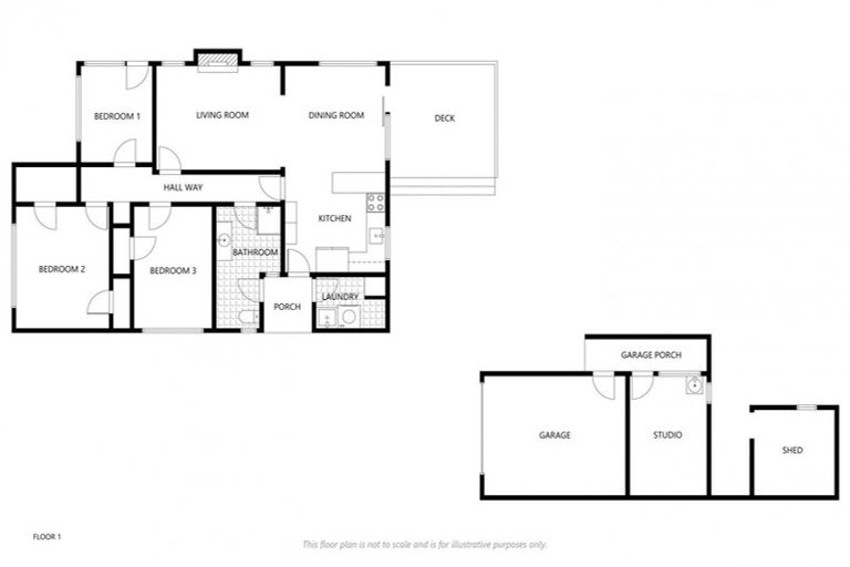
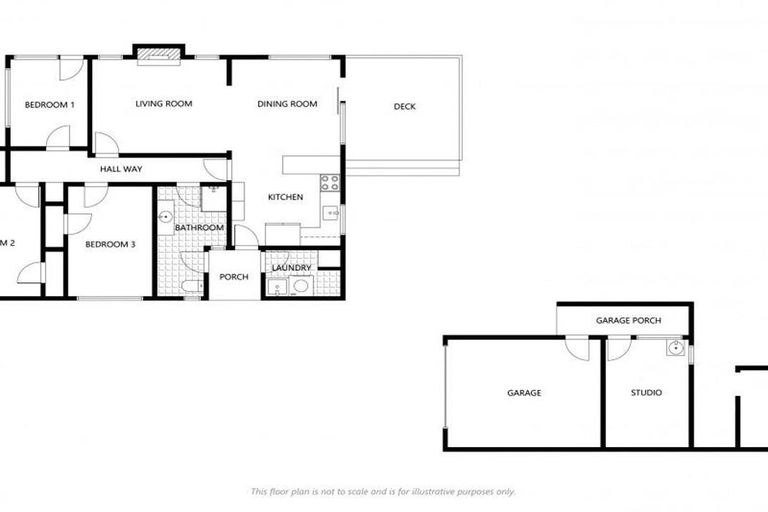
13 Matai Street, Levin, 5510 is a Residential property built in 1958 with 3 bedrooms, 1 bathroom and 2 parking spaces. The property is estimated to be valued in the range of $500,000 to $550,000.
The property last sold on 23 July 2021 for $625,000. It was sold by Tall Poppy Horowhenua, and took 33 days to sell. On 1 August 2025, 13 Matai Street, Levin, 5510 had a Rating Valuation with a Capital Value of $510,000, Land Value of $245,000 and Improvement Value of $265,000.
| Date | Type | Price | Agent/Agency |
|---|---|---|---|
| 29 Mar 2023 | Rented | $530 | Jeremy Skerman of Harcourts Team Group Rentals Limited (Levin) |
| 23 Jul 2021 | SOLD | $625,000 | Debby Turner of Tall Poppy Horowhenua |
| 21 Jun 2021 | ENQUIRIES OVER | $620,000 | Debby Turner of Tall Poppy Horowhenua |
| 13 Apr 2016 | SOLD | $165,000 | Michael Utting of Property Brokers Ltd Levin |
| 16 Mar 2016 | ASKING PRICE | $169,000 | Michael Utting of Property Brokers Ltd Levin |
| 5 Sep 2012 | SOLD | $86,000 | |
| 14 Jul 2003 | SOLD | $86,000 | |
| 16 Apr 2003 | SOLD | $60,000 | |
| 14 Dec 2000 | SOLD | $60,000 | |
| 23 Sep 1997 | SOLD | $60,000 |
Lot 15 Deposited Plan 19044
There are no similar properties in the area that are listed for sale or recently sold.