
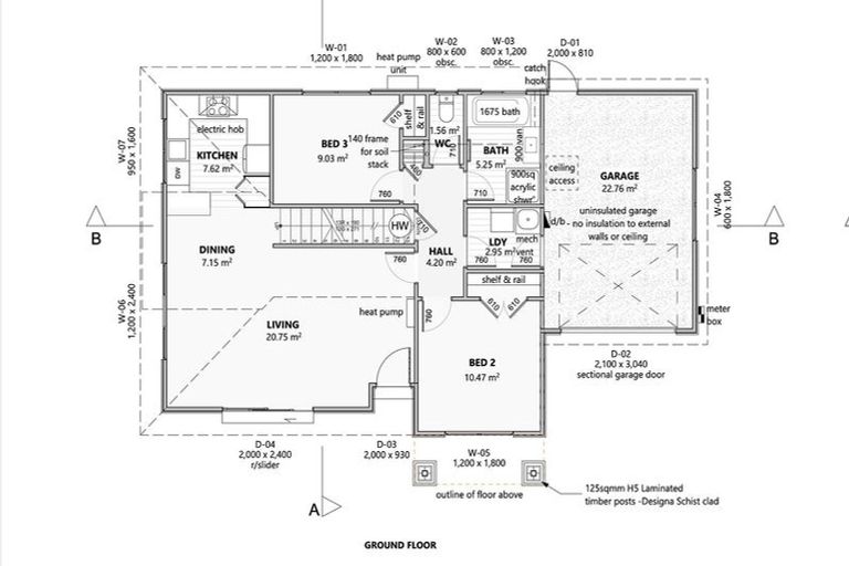
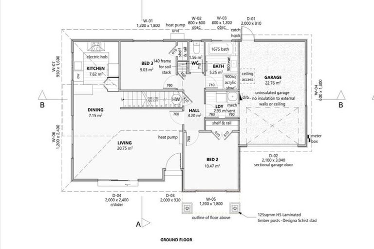
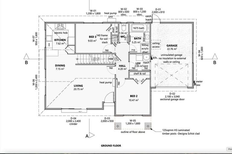
6 Snappers Lane, Foxton Beach, Foxton, 4815 is a Residential property built in 2021 with 3 bedrooms, 2 bathrooms and 1 parking space. The property is estimated to be valued in the range of $700,000 to $750,000.
It is unknown when the property was last sold or how much it was sold for. On 1 August 2025, 6 Snappers Lane, Foxton Beach, Foxton, 4815 had a Rating Valuation with a Capital Value of $660,000, Land Value of $225,000 and Improvement Value of $435,000.
| Date | Type | Price | Agent/Agency |
|---|---|---|---|
| 24 Jan 2026 | Rented | $665 | Myrent.Co.Nz of Myrent.Co.NZ Ltd |
| 18 Jul 2025 | ASKING PRICE | $769,000 | |
| 11 Dec 2024 | Rented | $650 | Myrent.Co.Nz of Myrent.Co.NZ Ltd |
| 5 Jun 2023 | Rented | $640 | Myrent.Co.Nz of Myrent.Co.NZ Ltd |
Lot 11 Deposited Plan 456610
There are no similar properties in the area that are listed for sale or recently sold.