
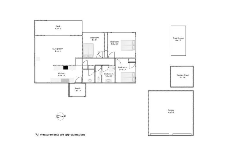
176 Mclean Street, Wairoa, 4108 is a Residential property built in 2008 with 3 bedrooms, 1 bathroom and 2 parking spaces. The property is estimated to be valued in the range of $350,000 to $375,000.
The property last sold on 26 January 2024 for $490,000. It was sold by Property Brokers Wairoa, (Licensed: Reaa 2008), and took 17 days to sell. On 1 August 2024, 176 Mclean Street, Wairoa, 4108 had a Rating Valuation with a Capital Value of $210,000, Land Value of $150,000 and Improvement Value of $60,000.
| Date | Type | Price | Agent/Agency |
|---|---|---|---|
| 26 Jan 2024 | SOLD | $490,000 | |
| 10 Jan 2024 | DEADLINE PRIVATE TREATY | Price Not Disclosed | Jenny Krzanich of Property Brokers Wairoa, (Licensed: Reaa 2008) |
| 9 Mar 2021 | SOLD | $435,000 | |
| 16 Jun 2004 | SOLD | $15,000 |
Lot 2 Deposited Plan 551773
There are no similar properties in the area that are listed for sale or recently sold.