
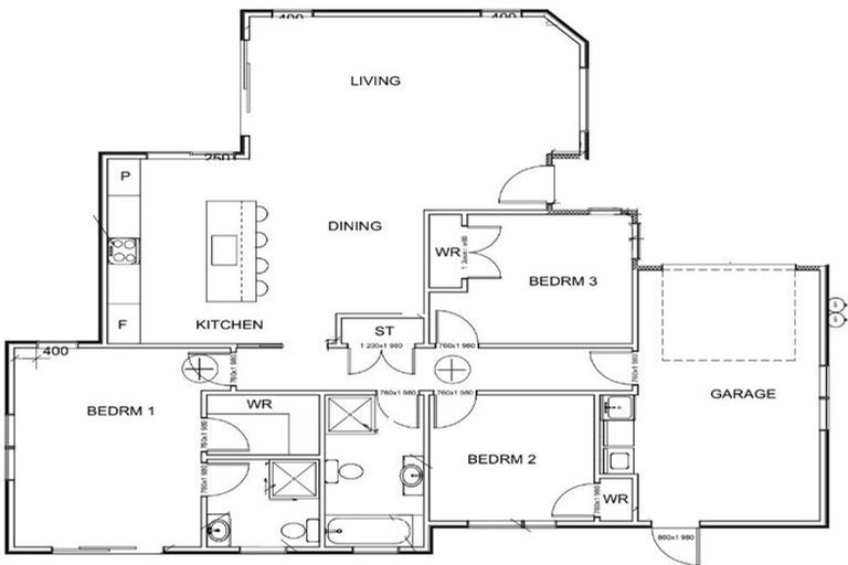
300a Kennedy Road, Onekawa, Napier, 4110 is a Residential property built in 2023 with 3 bedrooms, 2 bathrooms and 1 parking space. The property is estimated to be valued in the range of $800,000 to $900,000.
The property last sold on 29 June 2023 for $820,000. It was sold by Property Brokers Greenmeadows, (Licensed: Reaa 2008), and took 139 days to sell. On 1 October 2023, 300a Kennedy Road, Onekawa, Napier, 4110 had a Rating Valuation with a Capital Value of $800,000, Land Value of $305,000 and Improvement Value of $495,000.
| Date | Type | Price | Agent/Agency |
|---|---|---|---|
| 1 Oct 2025 | Rented | $750 | Quinovic Napier of Quinovic Napier |
| 17 Oct 2024 | Rented | $740 | Quinovic Napier of Quinovic Napier |
| 29 Jun 2023 | SOLD | $820,000 | Chris McIntyre of Property Brokers Greenmeadows, (Licensed: Reaa 2008) |
| 14 Apr 2023 | ASKING PRICE | $825,000 | Chris McIntyre of Property Brokers Greenmeadows, (Licensed: Reaa 2008) |
| 8 Jul 2022 | SOLD | $320,000 |
Lot 2 Deposited Plan 573976
There are no similar properties in the area that are listed for sale or recently sold.