
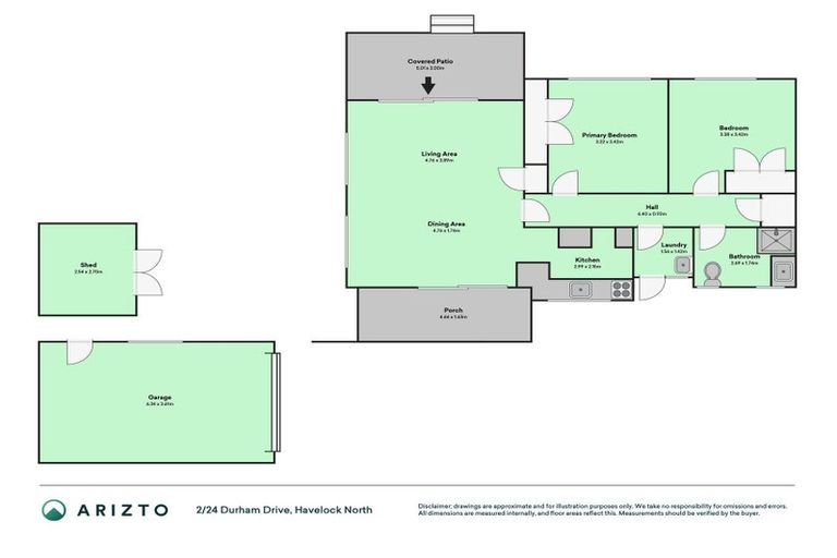
2/24 Durham Drive, Havelock North, 4130 is a Residential property built in 1985 with 2 bedrooms, 1 bathroom and 1 parking space. The property is estimated to be valued in the range of $600,000 to $650,000.
The property last sold on 1 February 2026 for $630,000. It was sold by Arizto Real Estate, (Licensed: Reaa 2008), and took 26 days to sell. On 1 August 2022, 2/24 Durham Drive, Havelock North, 4130 had a Rating Valuation with a Capital Value of $650,000, Land Value of $460,000 and Improvement Value of $190,000.
| Date | Type | Price | Agent/Agency |
|---|---|---|---|
| 23 Apr 2026 | Rented | $620 | Haylee Wynands of Rentsmart Property Management |
| 1 Feb 2026 | SOLD | $630,000 | |
| 7 Jan 2026 | ENQUIRIES OVER | $630,000 | Natasha Hadfield of Arizto Real Estate, (Licensed: Reaa 2008) |
| 23 Apr 2024 | SOLD | $665,000 | |
| 13 Mar 2024 | BY NEGOTIATION | Price Not Disclosed | Ashleigh Liley of New Zealand Sothebys International Realty, (Licensed: Reaa 2008) |
| 11 Feb 2013 | SOLD | $265,000 | Paul Terry of Property Brokers Havelock North |
| 30 Jan 2013 | ENQUIRIES OVER | $279,000 | Paul Terry of Property Brokers Havelock North |
| 9 Feb 2012 | DEADLINE PRIVATE TREATY | $255,000 | Paul Odell of Harcourts Regent Realty Havelock North |
| 5 Feb 2012 | SOLD | $245,000 | Paul Odell of Harcourts Regent Realty Havelock North |
| 5 Aug 1986 | SOLD | $75,000 |
Lot 30 Deposited Plan 17508
There are no similar properties in the area that are listed for sale or recently sold.