
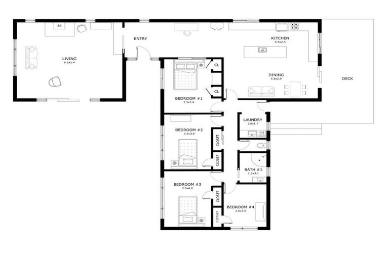
21 Flaxmere Avenue, Flaxmere, Hastings, 4120 is a Residential property built in 1970 with 4 bedrooms, 1 bathroom and 2 parking spaces. The property is estimated to be valued in the range of $650,000 to $700,000.
The property last sold on 19 May 2023 for $735,000. It was sold by Bayleys. On 1 August 2022, 21 Flaxmere Avenue, Flaxmere, Hastings, 4120 had a Rating Valuation with a Capital Value of $670,000, Land Value of $260,000 and Improvement Value of $410,000.
| Date | Type | Price | Agent/Agency |
|---|---|---|---|
| 19 May 2023 | SOLD | $735,000 | |
| 20 Apr 2023 | AUCTION | Price Not Disclosed | Joseph Skelton of Bayleys Havelock North, (Licensed: Reaa 2008) |
| 7 Jul 2011 | SOLD | $215,000 | Wendy Bell of Wise Real Estate |
| 5 May 2011 | DEADLINE PRIVATE TREATY | $230,000 | Wendy Bell of Wise Real Estate |
| 10 Nov 2004 | SOLD | $220,000 |
Lot 13 Deposited Plan 11860
There are no similar properties in the area that are listed for sale or recently sold.