
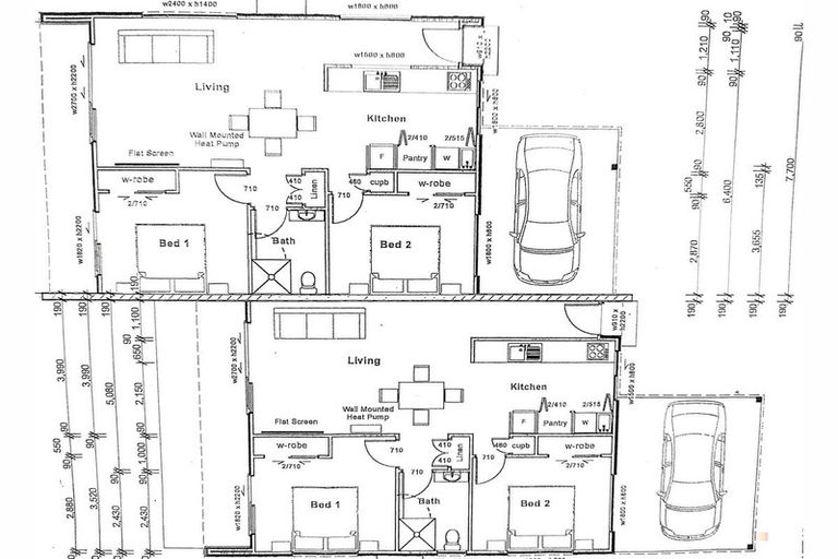
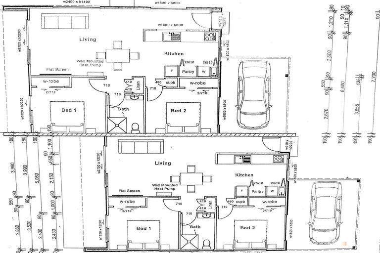
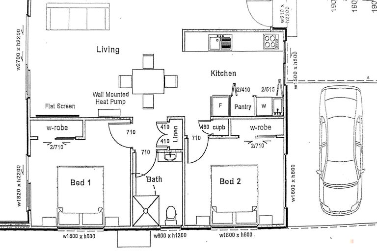
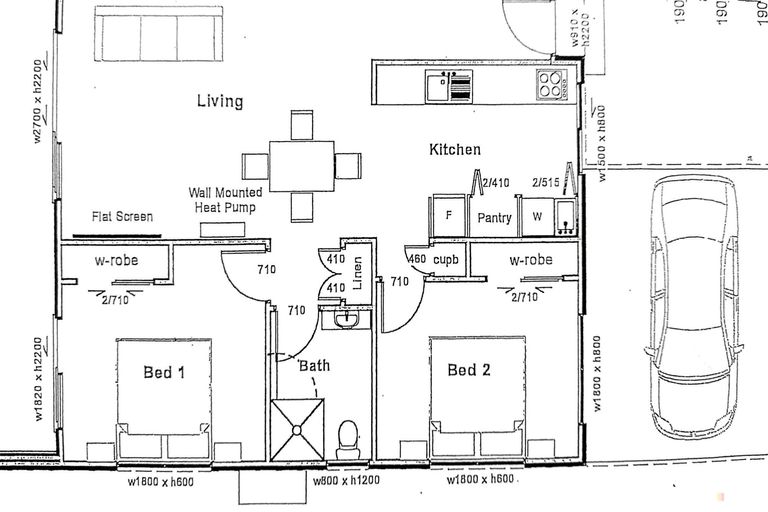
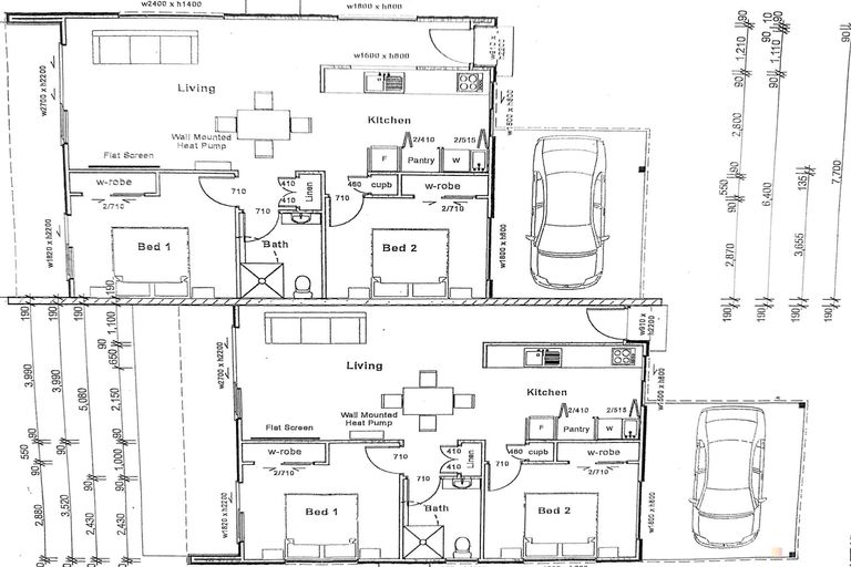
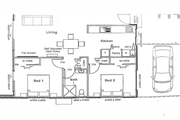
8a Holmes Street, Waimate, 7924 is a Residential property built in 2023 with 2 bedrooms, 1 bathroom and 1 parking space. The property is estimated to be valued in the range of $400,000 to $450,000.
The property last sold on 3 July 2023 for $774,000. On 1 June 2025, 8a Holmes Street, Waimate, 7924 had a Rating Valuation with a Capital Value of $390,000, Land Value of $80,000 and Improvement Value of $310,000.
| Date | Type | Price | Agent/Agency |
|---|---|---|---|
| 7 Mar 2025 | Rented | $460 | Talia Holden of LJ Hooker Waimate Enting Real Estate Ltd, (Licensed: Reaa 2008) |
| 18 Aug 2023 | Rented | $450 | Karen Buchanan of LJ Hooker Waimate Enting Real Estate Ltd, (Licensed: Reaa 2008) |
| 3 Jul 2023 | SOLD | $774,000 |
Lot 1 Deposited Plan 586534
There are no similar properties in the area that are listed for sale or recently sold.