
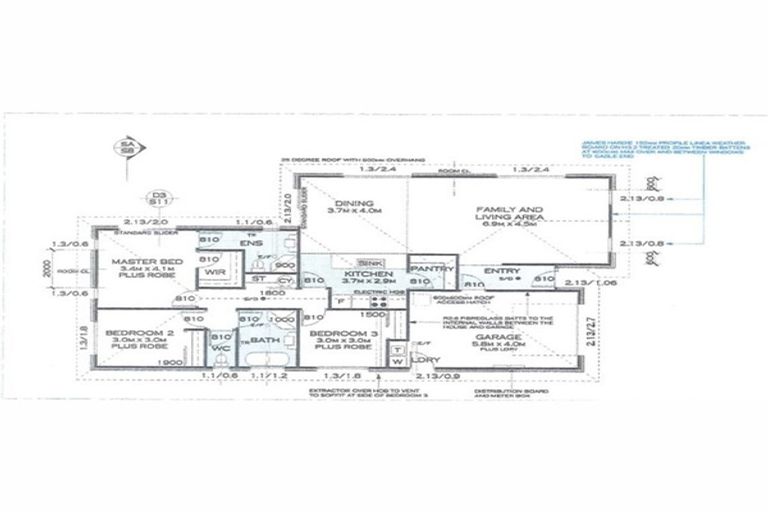
22 Nathaniel Archer Street, Woodend, 7610 is a Residential property built in 2022 with 3 bedrooms, 2 bathrooms and 1 parking space. The property is estimated to be valued in the range of $700,000 to $750,000.
The property last sold on 30 October 2022 for $745,000. It was sold by Mike Pero Real Estate - Kaiapoi. On 1 June 2025, 22 Nathaniel Archer Street, Woodend, 7610 had a Rating Valuation with a Capital Value of $710,000, Land Value of $320,000 and Improvement Value of $390,000.
| Date | Type | Price | Agent/Agency |
|---|---|---|---|
| 30 Oct 2022 | SOLD | $745,000 | Jono Smith of Mike Pero Real Estate - Kaiapoi |
| 30 Oct 2022 | SOLD | $745,000 | |
| 20 Jul 2022 | BY NEGOTIATION | Price Not Disclosed | Jono Smith of Mike Pero Real Estate - Kaiapoi |
Lot 480 Deposited Plan 567066
There are no similar properties in the area that are listed for sale or recently sold.