
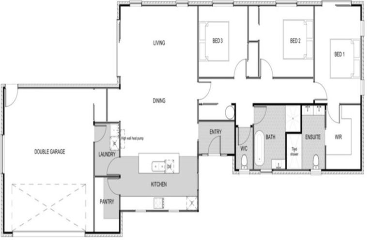
132 Chinnerys Road, Woodend, 7610 is a Residential property built in 2019 with 3 bedrooms, 2 bathrooms and 2 parking spaces. The property is estimated to be valued in the range of $800,000 to $900,000.
The property last sold on 7 May 2019 for $505,000. It was sold by Murchison Homes Ltd. On 1 June 2025, 132 Chinnerys Road, Woodend, 7610 had a Rating Valuation with a Capital Value of $790,000, Land Value of $350,000 and Improvement Value of $440,000.
| Date | Type | Price | Agent/Agency |
|---|---|---|---|
| 7 May 2019 | SOLD | $505,000 | |
| 13 Jul 2018 | SOLD | $134,783 |
Lot 199 Deposited Plan 525248
There are no similar properties in the area that are listed for sale or recently sold.