1 of 4Nov 25
Loading...
FOR SALE

41 Homestead Drive Rangiora, 7400


41 Homestead Drive , Rangiora, 7400
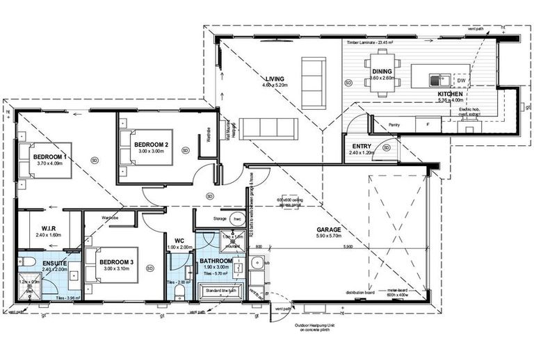
bed3
bathroom2
car-
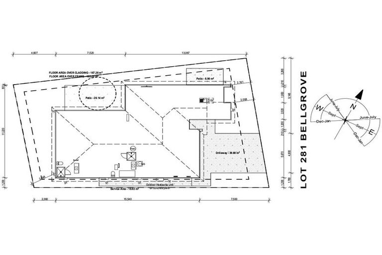
land326 m2
floor-
Property Type
Residential
Year Built
-
Last Sale information not available

Estimated Value Range  


An estimate of value is not currently available for this property. There could be insufficient property information or recent sales data. The property could be out of scope (e.g. non-residential, highly unique, rural) or the estimate cannot be determined with high enough confidence.

About 41 Homestead Drive, Rangiora, 7400

41 Homestead Drive, Rangiora, 7400 is a Residential property with 3 bedrooms, 2 bathrooms and 0 parking spaces. Due to insufficient data, the value of the property cannot be estimated.

It is unknown when the property was last sold or how much it was sold for. On 1 June 2025, 41 Homestead Drive, Rangiora, 7400 had a Rating Valuation with a Capital Value of $320,000 and Land Value of $320,000.

Property History

DateTypePriceAgent/Agency
26 Nov 2025ASKING PRICE$799,000Sarah Wyeth of Mike Greer Homes Ltd
Present Day
26 Nov
2025
Asking Price — $799,000
Listed by Sarah Wyeth of Mike Greer Homes Ltd
Unknown
Property Built

Commute Calculator

-
-
-
-

Rating Valuation

Capital Value
$320,000
Land Value
$320,000
Improvement Value
-
Legal Description(s)
-
Valuation Date
01-06-2025
Valuation Reference
21662/232

Additional Information

Roof Construction
-
Zone
Residential Zone C, 9C
Units of Use
1
Wall Construction
-
Maori Land
No
Territorial Authority
Waimakariri District
Land Use
-

Suburb Insights

Comparable Properties

There are no similar properties in the area that are listed for sale or recently sold.