
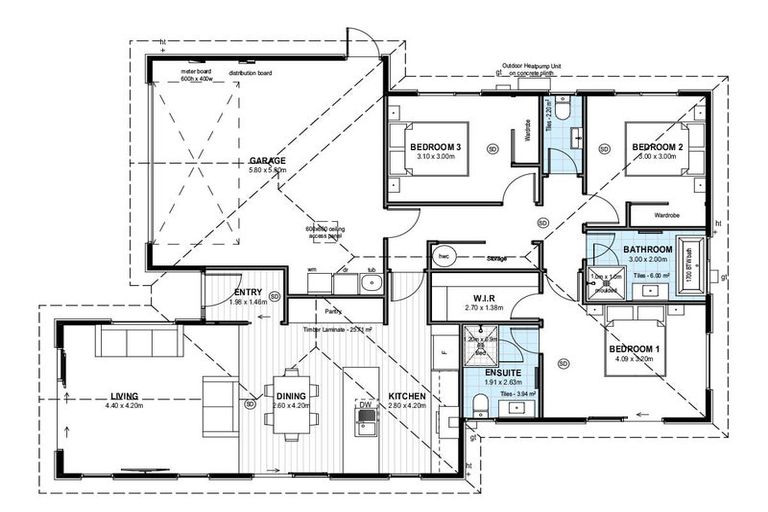
21 Hanmer Crescent, Rangiora, 7400 is a Residential property built in 2025 with 3 bedrooms, 2 bathrooms and 2 parking spaces. The property is estimated to be valued in the range of $750,000 to $800,000.
The property last sold on 30 April 2025 for $779,000. It was sold by Mike Greer Homes Ltd, and took 60 days to sell. On 1 June 2025, 21 Hanmer Crescent, Rangiora, 7400 had a Rating Valuation with a Capital Value of $740,000, Land Value of $350,000 and Improvement Value of $390,000.
| Date | Type | Price | Agent/Agency |
|---|---|---|---|
| 30 Apr 2025 | SOLD | $779,000 | |
| 2 Mar 2025 | ASKING PRICE | $779,000 | Sue Coakley of Mike Greer Homes Ltd |
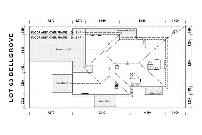
Lot 63 Deposited Plan 589532
There are no similar properties in the area that are listed for sale or recently sold.