
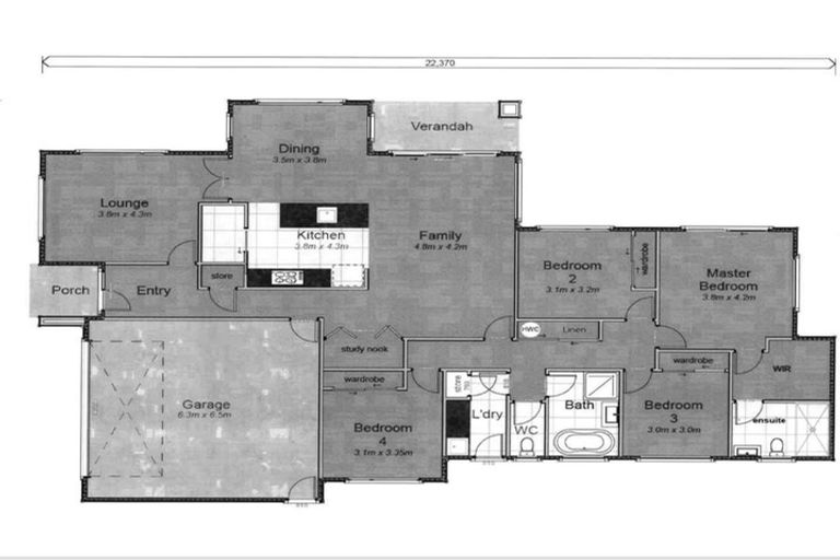
19 Hickmott Street, Rangiora, 7400 is a Residential property built in 2021 with 4 bedrooms, 2 bathrooms and 2 parking spaces. The property is estimated to be valued in the range of $900,000 to $1,000,000.
The property last sold on 20 October 2020 for $642,000. On 1 June 2025, 19 Hickmott Street, Rangiora, 7400 had a Rating Valuation with a Capital Value of $880,000, Land Value of $380,000 and Improvement Value of $500,000.
| Date | Type | Price | Agent/Agency |
|---|---|---|---|
| 2 Feb 2024 | ENQUIRIES OVER | $869,000 | Karen Johansson of Total Realty South Island, (Licensed: Reaa 2008) |
| 12 Oct 2023 | ENQUIRIES OVER | $899,000 | Karen Johansson of Total Realty South Island, (Licensed: Reaa 2008) |
| 11 Sep 2023 | Rented | $720 | |
| 20 Oct 2020 | SOLD | $642,000 |
Lot 123 Deposited Plan 551791
There are no similar properties in the area that are listed for sale or recently sold.