
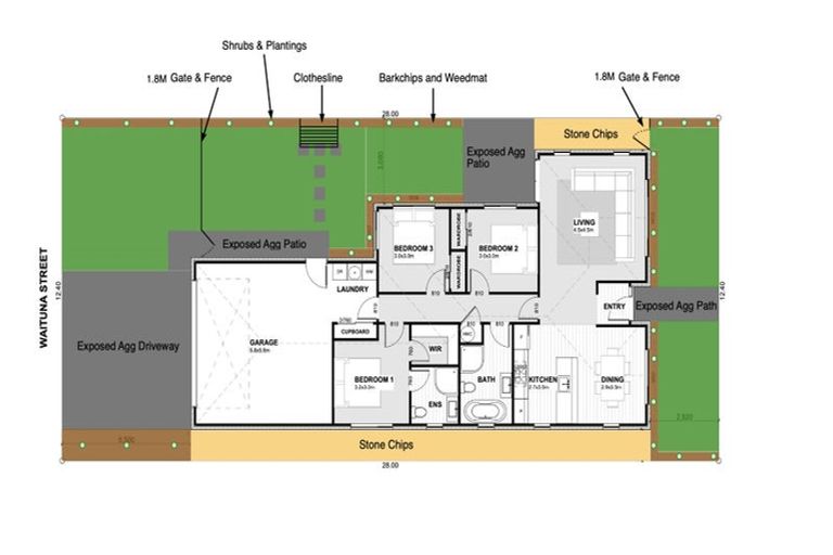
63 Pegasus Main Street, Pegasus, 7612 is a Residential property built in 2025 with 3 bedrooms, 2 bathrooms and 2 parking spaces. The property is estimated to be valued in the range of $700,000 to $750,000.
The property last sold on 25 March 2026 for an unknown price. It was sold by Arizto Real Estate, (Licensed: Reaa 2008), and took 49 days to sell. On 1 June 2025, 63 Pegasus Main Street, Pegasus, 7612 had a Rating Valuation with a Capital Value of $690,000, Land Value of $260,000 and Improvement Value of $430,000.
| Date | Type | Price | Agent/Agency |
|---|---|---|---|
| 25 Mar 2026 | $0 | Pending Settlement Advice | |
| 5 Feb 2026 | ENQUIRIES OVER | $689,000 | Sally Davies of Arizto Real Estate, (Licensed: Reaa 2008) |
| 18 Mar 2025 | SOLD | $699,000 | |
| 25 Oct 2024 | ASKING PRICE | $699,000 | Peter Cloughley of Tara Homes Ltd |
| 1 Jan 1930 | SOLD | $0 |
Lot 17 Deposited Plan 580774
There are no similar properties in the area that are listed for sale or recently sold.