
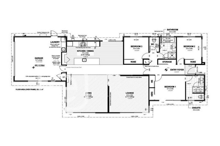
23 Kawari Drive, Pegasus, 7612 is a Residential property built in 2014 with 3 bedrooms, 2 bathrooms and 2 parking spaces. The property is estimated to be valued in the range of $800,000 to $900,000.
The property last sold on 20 February 2023 for $710,000. It was sold by Mike Pero Real Estate - Kaiapoi, Amberley And Belfast, (Licensed: Reaa 2008), and took 34 days to sell. On 1 June 2025, 23 Kawari Drive, Pegasus, 7612 had a Rating Valuation with a Capital Value of $780,000, Land Value of $310,000 and Improvement Value of $470,000.
| Date | Type | Price | Agent/Agency |
|---|---|---|---|
| 20 Feb 2023 | SOLD | $710,000 | |
| 18 Jan 2023 | ASKING PRICE | $729,000 | Janine Duke of Mike Pero Real Estate - Kaiapoi, Amberley And Belfast, (Licensed: Reaa 2008) |
| 12 Oct 2020 | SOLD | $593,000 | |
| 18 Aug 2012 | ASKING PRICE | $155,000 | Graeme Petrowski of Twiss-Keir Realty Ltd Pegasus |
Lot 104 Deposited Plan 458158
There are no similar properties in the area that are listed for sale or recently sold.