
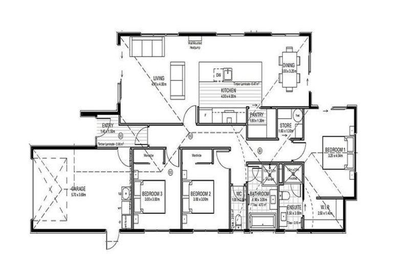
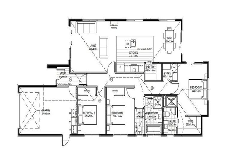
23 Gossett Lane, Pegasus, 7612 is a Residential property built in 2023 with 3 bedrooms, 2 bathrooms and 1 parking space. The property is estimated to be valued in the range of $700,000 to $750,000.
It is unknown when the property was last sold or how much it was sold for. On 1 June 2025, 23 Gossett Lane, Pegasus, 7612 had a Rating Valuation with a Capital Value of $670,000, Land Value of $265,000 and Improvement Value of $405,000.
| Date | Type | Price | Agent/Agency |
|---|---|---|---|
| 26 Mar 2026 | Rented | $610 | |
| 22 Jul 2024 | Rented | $590 | |
| 14 Jan 2024 | Rented | $590 | |
| 22 Feb 2023 | Rented | $540 |
Lot 18 Deposited Plan 586229
There are no similar properties in the area that are listed for sale or recently sold.