
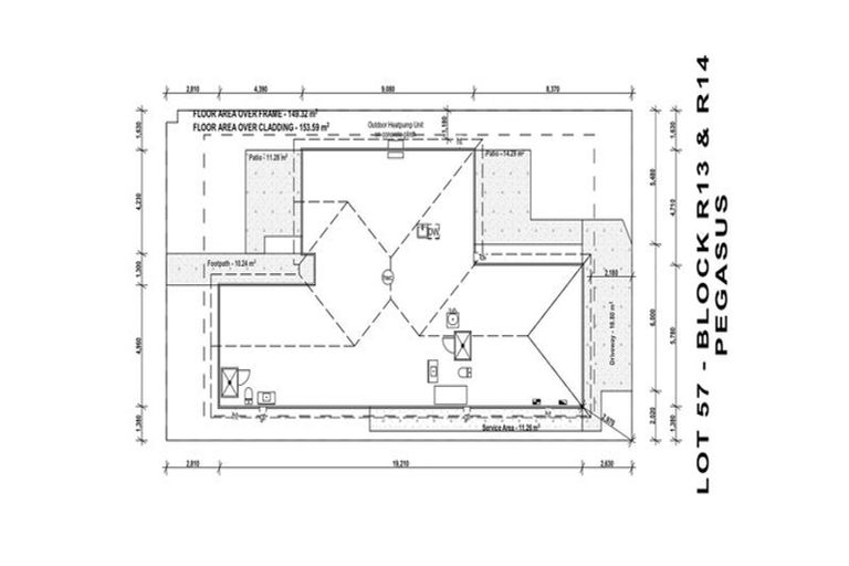
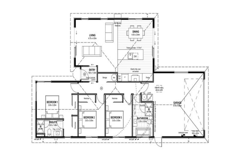
12 Edlin Lane, Pegasus, 7612 is a Residential property built in 2024 with 3 bedrooms, 2 bathrooms and 2 parking spaces. The property is estimated to be valued in the range of $700,000 to $750,000.
The property last sold on 31 July 2023 for $715,000. It was sold by Mike Greer Homes Ltd, and took 168 days to sell. On 1 June 2025, 12 Edlin Lane, Pegasus, 7612 had a Rating Valuation with a Capital Value of $670,000, Land Value of $265,000 and Improvement Value of $405,000.
| Date | Type | Price | Agent/Agency |
|---|---|---|---|
| 3 Jul 2024 | Rented | $610 | Deborah Wilding of Bell Cross Roberton Ltd |
| 6 Mar 2024 | Rented | $650 | Shelley Harris of Bell Cross Roberton Ltd |
| 31 Jul 2023 | SOLD | $715,000 | Jeremy Williams of Mike Greer Homes Ltd |
| 14 Feb 2023 | ASKING PRICE | $715,000 | Jeremy Williams of Mike Greer Homes Ltd |
Lot 57 Deposited Plan 589121
There are no similar properties in the area that are listed for sale or recently sold.