1 of 5Mar 26
Loading...

69 Waiotahi Road Kaiapoi, 7630


69 Waiotahi Road , Kaiapoi, 7630
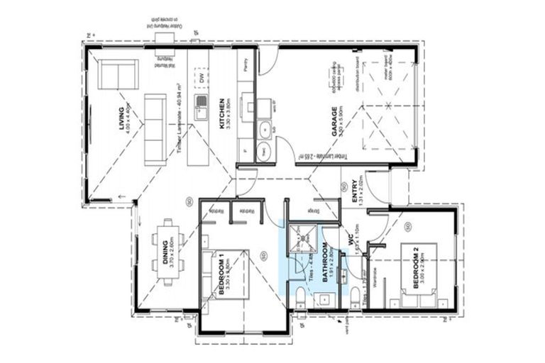
bed2
bathroom1
car-
land268 m2
floor-
Property Type
Residential
Year Built
-
Last Sold on 12 Sep 2024 for $883,478
Settlement Date
25 Feb 2026
Sold By
-
Settlement Date
25 Feb 2026
Sold By
-

Estimated Value Range  


An estimate of value is not currently available for this property. There could be insufficient property information or recent sales data. The property could be out of scope (e.g. non-residential, highly unique, rural) or the estimate cannot be determined with high enough confidence.

About 69 Waiotahi Road, Kaiapoi, 7630

69 Waiotahi Road, Kaiapoi, 7630 is a Residential property with 2 bedrooms, 1 bathroom and 0 parking spaces. Due to insufficient data, the value of the property cannot be estimated.

The property last sold on 12 September 2024 for $883,478. On 1 June 2025, 69 Waiotahi Road, Kaiapoi, 7630 had a Rating Valuation with a Capital Value of $265,000 and Land Value of $265,000.

Property History

DateTypePriceAgent/Agency
12 Feb 2026ASKING PRICE$625,000Sarah Wyeth of Mike Greer Homes Ltd
12 Sep 2024SOLD$883,478
Present Day
12 Feb
2026
Asking Price — $625,000
Listed by Sarah Wyeth of Mike Greer Homes Ltd
12 Sep
2024
Sold for $883,478
1 year 7 months 18 days
Unknown
Property Built

Commute Calculator

-
-
-
-

Rating Valuation

Capital Value
$265,000
Land Value
$265,000
Improvement Value
-
Legal Description(s)
-
Valuation Date
01-06-2025
Valuation Reference
21753/50582

Additional Information

Roof Construction
-
Zone
Multi-use or Reserve Land Zone X, 0X
Units of Use
1
Wall Construction
-
Maori Land
No
Territorial Authority
Waimakariri District
Land Use
Vacant Residential

Suburb Insights

Comparable Properties

There are no similar properties in the area that are listed for sale or recently sold.