
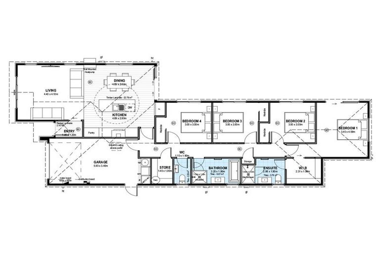
40 Mcgarry Drive, Kaiapoi, 7630 is a Residential property built in 2025 with 4 bedrooms, 2 bathrooms and 1 parking space. The property is estimated to be valued in the range of $750,000 to $800,000.
The property last sold on 9 July 2025 for $739,000. It was sold by Mike Greer Homes Ltd, and took 7 days to sell. On 1 June 2025, 40 Mcgarry Drive, Kaiapoi, 7630 had a Rating Valuation with a Capital Value of $720,000, Land Value of $285,000 and Improvement Value of $435,000.
| Date | Type | Price | Agent/Agency |
|---|---|---|---|
| 29 Jul 2025 | Rented | $670 | Tracey Idour of Cpm Canterbury Property Management |
| 9 Jul 2025 | SOLD | $739,000 | |
| 2 May 2025 | ASKING PRICE | $739,000 | Jeremy Williams of Mike Greer Homes Ltd |
| 23 Jan 2025 | ASKING PRICE | $739,000 | Jeremy Williams of Mike Greer Homes Ltd |
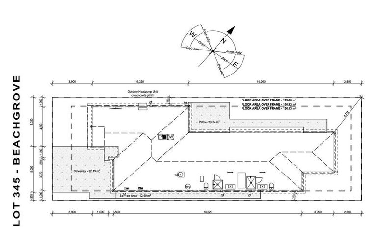
Lot 345 Deposited Plan 604635
There are no similar properties in the area that are listed for sale or recently sold.