
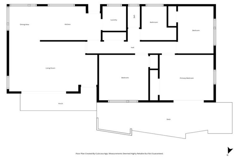
36 Sneyd Street, Kaiapoi, 7630 is a Residential property built in 1977 with 3 bedrooms, 1 bathroom and 2 parking spaces. The property is estimated to be valued in the range of $600,000 to $650,000.
The property last sold on 4 February 2026 for $630,000. It was sold by Gold Real Estate Group Papanui, (Licensed: Reaa 2008), and took 29 days to sell. On 1 June 2025, 36 Sneyd Street, Kaiapoi, 7630 had a Rating Valuation with a Capital Value of $580,000, Land Value of $290,000 and Improvement Value of $290,000.
| Date | Type | Price | Agent/Agency |
|---|---|---|---|
| 4 Feb 2026 | SOLD | $630,000 | |
| 7 Jan 2026 | BY NEGOTIATION | Price Not Disclosed | Craig Varcoe of Gold Real Estate Group Papanui, (Licensed: Reaa 2008) |
| 23 Dec 2015 | SOLD | $355,000 | |
| 18 Dec 2015 | ENQUIRIES OVER | $349,000 |
Lot 9 Deposited Plan 36508
There are no similar properties in the area that are listed for sale or recently sold.