
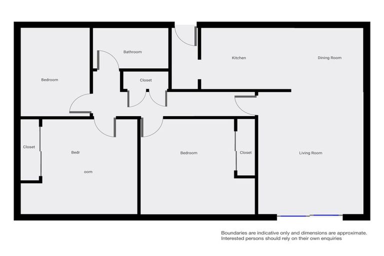
32a Otaki Street, Kaiapoi, 7630 is a Residential property built in 1975 with 3 bedrooms, 1 bathroom and 1 parking space. The property is estimated to be valued in the range of $450,000 to $500,000.
The property last sold on 24 July 2022 for $410,000. It was sold by Kelleher Real Estate Limited, and took 75 days to sell. On 1 June 2025, 32a Otaki Street, Kaiapoi, 7630 had a Rating Valuation with a Capital Value of $430,000, Land Value of $180,000 and Improvement Value of $250,000.
| Date | Type | Price | Agent/Agency |
|---|---|---|---|
| 24 Jul 2022 | SOLD | $410,000 | Forbes Howie of Kelleher Real Estate Limited |
| 11 May 2022 | DEADLINE PRIVATE TREATY | Price Not Disclosed | Forbes Howie of Kelleher Real Estate Limited |
| 21 Apr 2019 | SOLD | $290,000 | |
| 21 Apr 2019 | SOLD | $290,000 | |
| 11 Apr 2019 | ASKING PRICE | $300,000 | Erin Morrison of First Avenue Property Ltd, (Licensed: Reaa 2008) |
| 11 Apr 2019 | ASKING PRICE | $300,000 | Erin Morrison of First Avenue Property Ltd, (Licensed: Reaa 2008) |
| 4 Jan 2013 | SOLD | $230,000 | Robyn Gauld of Twiss-Keir Realty Ltd |
| 13 Dec 2012 | ASKING PRICE | $235,000 | Robyn Gauld of Twiss-Keir Realty Ltd |
| 17 Aug 2010 | SOLD | $210,000 | |
| 15 Feb 2004 | SOLD | $141,000 | |
| 17 Jul 1996 | SOLD | $109,500 |
Lot 1 Deposited Plan 36536
There are no similar properties in the area that are listed for sale or recently sold.