
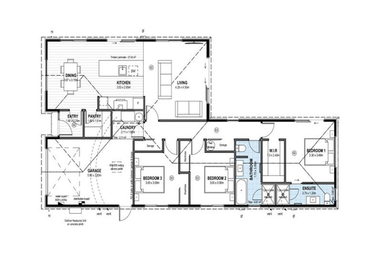
32 Bastings Street, Kaiapoi, 7630 is a Residential property built in 2024 with 3 bedrooms, 2 bathrooms and 2 parking spaces. The property is estimated to be valued in the range of $750,000 to $800,000.
The property last sold on 13 May 2025 for $765,000. It was sold by Mike Greer Homes Ltd, and took 36 days to sell. On 1 June 2025, 32 Bastings Street, Kaiapoi, 7630 had a Rating Valuation with a Capital Value of $750,000, Land Value of $350,000 and Improvement Value of $400,000.
| Date | Type | Price | Agent/Agency |
|---|---|---|---|
| 13 May 2025 | SOLD | $765,000 | |
| 8 Apr 2025 | ASKING PRICE | $765,000 | Jeremy Williams of Mike Greer Homes Ltd |
| 12 Jul 2024 | ASKING PRICE | $775,000 | Jeremy Williams of Mike Greer Homes Ltd |
| 1 Jan 1930 | SOLD | $0 |
Lot 193 Deposited Plan 573510
There are no similar properties in the area that are listed for sale or recently sold.