1 of 4Nov 25
Loading...

28 Lintott Street Kaiapoi, 7630


28 Lintott Street , Kaiapoi, 7630
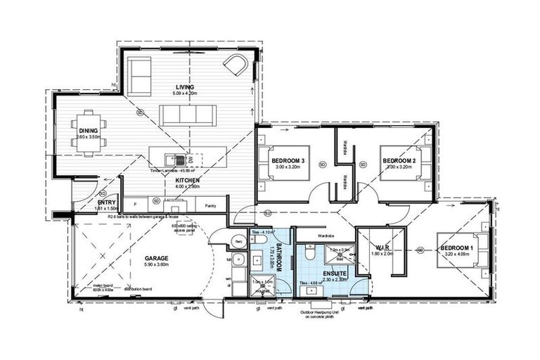
bed3
bathroom2
car-
land314 m2
floor-
Property Type
Residential
Year Built
-
Last Sold on 18 Mar 2024 for $701,739
Settlement Date
05 Sep 2025
Sold By
-
Settlement Date
05 Sep 2025
Sold By
-

Estimated Value Range  


An estimate of value is not currently available for this property. There could be insufficient property information or recent sales data. The property could be out of scope (e.g. non-residential, highly unique, rural) or the estimate cannot be determined with high enough confidence.

About 28 Lintott Street, Kaiapoi, 7630

28 Lintott Street, Kaiapoi, 7630 is a Residential property with 3 bedrooms, 2 bathrooms and 0 parking spaces. Due to insufficient data, the value of the property cannot be estimated.

The property last sold on 18 March 2024 for $701,739. On 1 June 2025, 28 Lintott Street, Kaiapoi, 7630 had a Rating Valuation with a Capital Value of $285,000 and Land Value of $285,000.

Property History

DateTypePriceAgent/Agency
26 Nov 2025ASKING PRICE$699,000Sue Coakley of Mike Greer Homes Ltd
18 Mar 2024SOLD$701,739
Present Day
26 Nov
2025
Asking Price — $699,000
Listed by Sue Coakley of Mike Greer Homes Ltd
18 Mar
2024
Sold for $701,739
2 years 1 month 10 days
Unknown
Property Built

Commute Calculator

-
-
-
-

Rating Valuation

Capital Value
$285,000
Land Value
$285,000
Improvement Value
-
Legal Description(s)

Lot 446 Deposited Plan 611502

Valuation Date
01-06-2025
Valuation Reference
21753/50543

Additional Information

Roof Construction
-
Zone
Multi-use or Reserve Land Zone X, 0X
Units of Use
1
Wall Construction
-
Maori Land
No
Territorial Authority
Waimakariri District
Land Use
Vacant Residential

Suburb Insights

Comparable Properties

There are no similar properties in the area that are listed for sale or recently sold.