
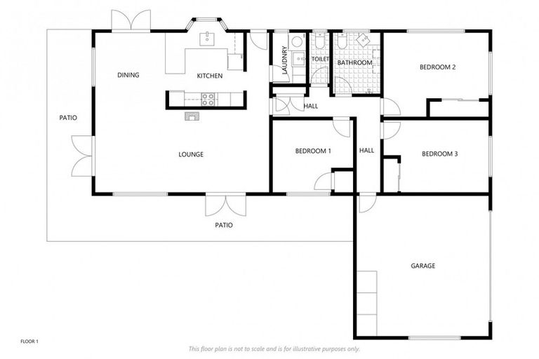
24b Sidey Quay, Kaiapoi, 7630 is a Residential property built in 1989 with 3 bedrooms, 1 bathroom and 2 parking spaces. The property is estimated to be valued in the range of $650,000 to $700,000.
The property last sold on 19 June 2022 for $685,000. It was sold by Harcourts Four Seasons Realty 2017 Ltd, The Palms. On 1 June 2025, 24b Sidey Quay, Kaiapoi, 7630 had a Rating Valuation with a Capital Value of $660,000, Land Value of $335,000 and Improvement Value of $325,000.
| Date | Type | Price | Agent/Agency |
|---|---|---|---|
| 19 Jun 2022 | SOLD | $685,000 | |
| 21 Feb 2022 | BY NEGOTIATION | Price Not Disclosed | Mitchell Roberts of Harcourts Four Seasons Realty 2017 Ltd, The Palms, (Licensed: Reaa 2008) |
| 4 Nov 2021 | SOLD | $700,000 | April Wellington & Brendon Wellington of Tall Poppy North Canterbury |
| 19 Oct 2021 | DEADLINE PRIVATE TREATY | Price Not Disclosed | April Wellington & Brendon Wellington of Tall Poppy North Canterbury |
| 31 Dec 1997 | SOLD | $170,000 | |
| 8 Aug 1996 | SOLD | $163,000 | |
| 10 Jun 1990 | SOLD | $134,000 | |
| 16 May 1989 | SOLD | $23,000 |
Lot 4 Deposited Plan 49721
There are no similar properties in the area that are listed for sale or recently sold.