
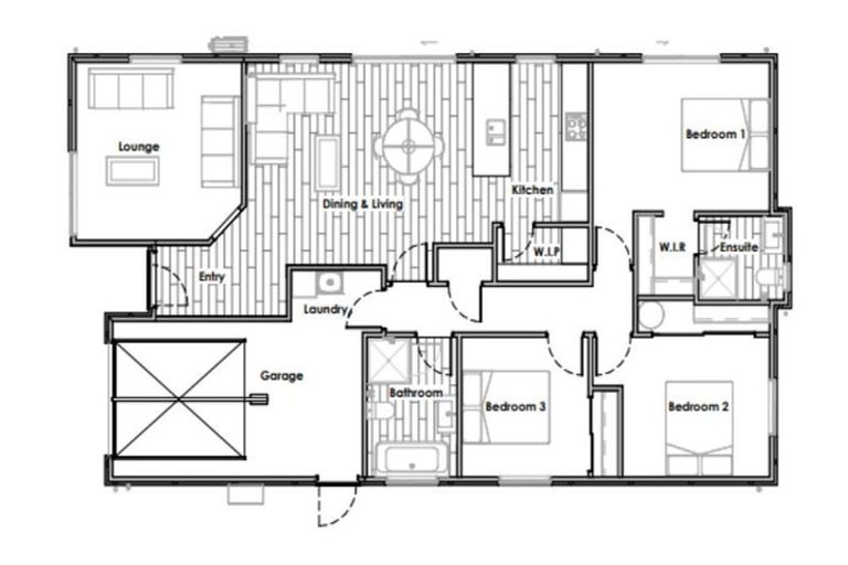
24 Lintott Street, Kaiapoi, 7630 is a Residential property built in 2025 with 3 bedrooms, 2 bathrooms and 1 parking space. The property is estimated to be valued in the range of $700,000 to $750,000.
The property last sold on 18 July 2025 for $707,000. It was sold by Fraemohs Homes NZ Ltd, and took 71 days to sell. On 1 June 2025, 24 Lintott Street, Kaiapoi, 7630 had a Rating Valuation with a Capital Value of $660,000, Land Value of $295,000 and Improvement Value of $365,000.
| Date | Type | Price | Agent/Agency |
|---|---|---|---|
| 18 Jul 2025 | SOLD | $707,000 | John Hawes of Fraemohs Homes NZ Ltd |
| 16 Feb 2025 | ENQUIRIES OVER | $719,000 | Sean Paul Lally of Fraemohs Homes NZ Ltd |
| 21 Aug 2024 | SOLD | $260,000 | |
| 1 Jan 1930 | SOLD | $0 |
Lot 448 Deposited Plan 611502
There are no similar properties in the area that are listed for sale or recently sold.