
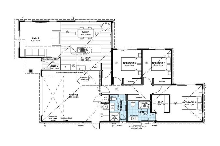
22 Lintott Street, Kaiapoi, 7630 is a Residential property built in 2026 with 3 bedrooms, 2 bathrooms and 2 parking spaces. The property is estimated to be valued in the range of $750,000 to $800,000.
The property last sold on 15 January 2026 for $739,000. It was sold by Mike Greer Homes Ltd, and took 7 days to sell. On 1 June 2025, 22 Lintott Street, Kaiapoi, 7630 had a Rating Valuation with a Capital Value of $715,000, Land Value of $295,000 and Improvement Value of $420,000.
| Date | Type | Price | Agent/Agency |
|---|---|---|---|
| 15 Jan 2026 | SOLD | $739,000 | |
| 6 Sep 2025 | ASKING PRICE | $739,000 | Sarah Wyeth of Mike Greer Homes Ltd |
| 18 Mar 2024 | SOLD | $734,782 |
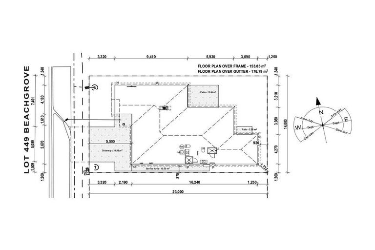
Lot 449 Deposited Plan 611502
There are no similar properties in the area that are listed for sale or recently sold.