
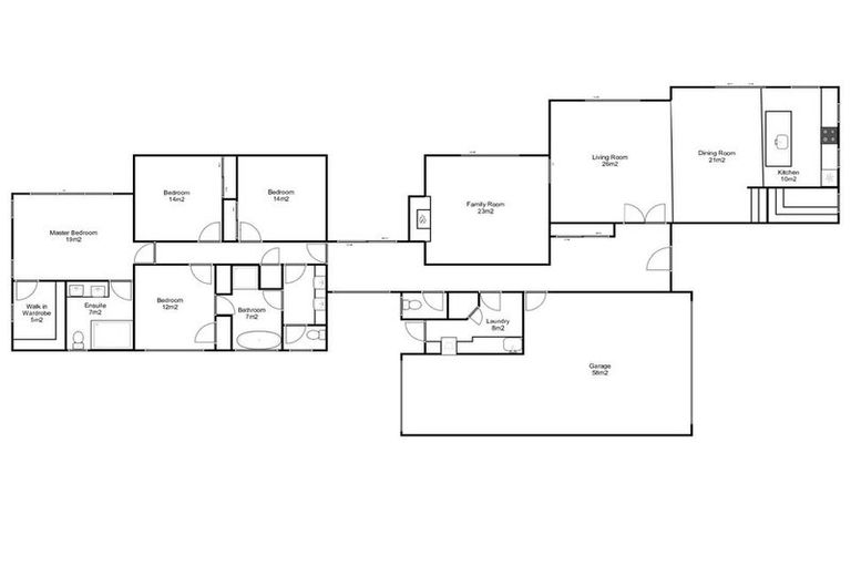
70 Rotherham Drive, West Melton, 7618 is a Residential property built in 2012 with 4 bedrooms, 2 bathrooms and 3 parking spaces. The property is estimated to be valued in the range of $1,100,000 to $1,200,000.
The property last sold on 8 May 2024 for $1,090,000. It was sold by Najib Real Estate Ltd, (Licensed: Reaa 2008), and took 58 days to sell. On 1 September 2024, 70 Rotherham Drive, West Melton, 7618 had a Rating Valuation with a Capital Value of $1,080,000, Land Value of $430,000 and Improvement Value of $650,000.
| Date | Type | Price | Agent/Agency |
|---|---|---|---|
| 8 May 2024 | SOLD | $1,090,000 | |
| 12 Mar 2024 | BY NEGOTIATION | Price Not Disclosed | Nathan Najib of Najib Real Estate Ltd, (Licensed: Reaa 2008) |
| 2 Jun 2021 | SOLD | $1,050,000 | Courtney Hopkins of Ray White Selwyn (Town And Lifestyle Real Estate Ltd) |
| 13 May 2021 | ENQUIRIES OVER | $1,049,000 | Courtney Hopkins of Ray White Selwyn (Town And Lifestyle Real Estate Ltd) |
| 30 Aug 2012 | SOLD | $723,000 | Tim Areinz of Professionals Papanui (Kerr Realty Ltd Mreinz) |
| 6 Jun 2012 | ASKING PRICE | $749,000 | Tim Areinz of Professionals Papanui (Kerr Realty Ltd Mreinz) |
| 3 May 2007 | SOLD | $199,000 |
Lot 41 Deposited Plan 398852
There are no similar properties in the area that are listed for sale or recently sold.