
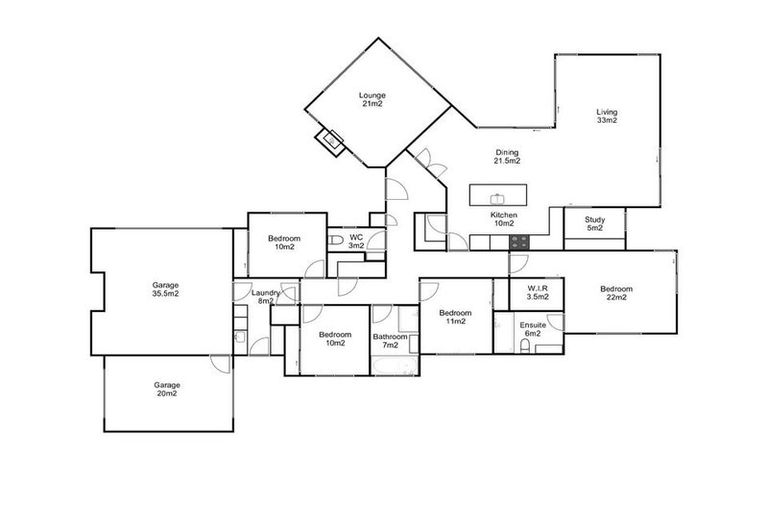
62 Rossington Drive, West Melton, 7618 is a Residential property built in 2013 with 4 bedrooms, 2 bathrooms and 3 parking spaces. The property is estimated to be valued in the range of $1,200,000 to $1,300,000.
The property last sold on 13 November 2024 for $1,195,000. It was sold by Najib Real Estate Ltd, (Licensed: Reaa 2008). On 1 September 2024, 62 Rossington Drive, West Melton, 7618 had a Rating Valuation with a Capital Value of $1,120,000, Land Value of $420,000 and Improvement Value of $700,000.
| Date | Type | Price | Agent/Agency |
|---|---|---|---|
| 13 Nov 2024 | SOLD | $1,195,000 | |
| 8 Oct 2024 | ENQUIRIES OVER | $1,075,000 | Nathan Najib of Najib Real Estate |
| 28 May 2020 | SOLD | $835,000 | Sarah Booth of Town & Lifestyle Real Estate Ltd (Licensed: Reaa 2008) Ray White |
| 28 Apr 2020 | ASKING PRICE | $858,000 | Sarah Booth of Ray White Selwyn (Town And Lifestyle Real Estate Ltd) |
| 28 Apr 2015 | SOLD | $785,000 | |
| 17 Mar 2015 | ENQUIRIES OVER | $799,000 | |
| 17 Jan 2012 | SOLD | $210,000 |
Lot 18 Deposited Plan 451276
There are no similar properties in the area that are listed for sale or recently sold.