
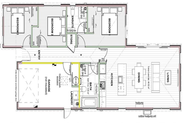
9 Cowley Lane, Rolleston, 7615 is a Residential property built in 2023 with 3 bedrooms, 2 bathrooms and 1 parking space. The property is estimated to be valued in the range of $650,000 to $700,000.
The property last sold on 15 August 2022 for $675,000. It was sold by Harcourts Lincoln - Four Seasons Realty 2017 Ltd, and took 17 days to sell. On 1 September 2024, 9 Cowley Lane, Rolleston, 7615 had a Rating Valuation with a Capital Value of $660,000, Land Value of $285,000 and Improvement Value of $375,000.
| Date | Type | Price | Agent/Agency |
|---|---|---|---|
| 15 Aug 2022 | SOLD | $675,000 | |
| 30 Jul 2022 | ASKING PRICE | $675,000 | Natalie McLean of Harcourts Lincoln - Four Seasons Realty 2017 Ltd |
Lot 929 Deposited Plan 585017
There are no similar properties in the area that are listed for sale or recently sold.