
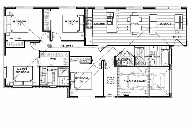
25 Lady Isaac Drive, Rolleston, 7615 is a Residential property built in 2021 with 4 bedrooms, 2 bathrooms and 2 parking spaces. The property is estimated to be valued in the range of $700,000 to $750,000.
The property last sold on 17 October 2020 for $510,000. On 1 September 2024, 25 Lady Isaac Drive, Rolleston, 7615 had a Rating Valuation with a Capital Value of $690,000, Land Value of $315,000 and Improvement Value of $375,000.
| Date | Type | Price | Agent/Agency |
|---|---|---|---|
| 25 Jan 2024 | Rented | $630 | Rebecca | Anna-Marie of Xclusive Property Management |
| 20 Oct 2022 | Rented | $580 | Rebecca | Anna-Marie Gerber of Xclusive Property Management |
| 5 Oct 2021 | Rented | $545 | Rebecca | Anna-Marie Gerber of Xclusive Property Management |
| 17 Oct 2020 | SOLD | $510,000 |
Lot 193 Deposited Plan 538296
There are no similar properties in the area that are listed for sale or recently sold.