
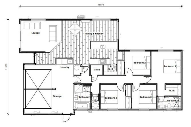
34 Mondo Drive, Rolleston, 7614 is a Residential property built in 2026 with 4 bedrooms, 2 bathrooms and 2 parking spaces. The property is estimated to be valued in the range of $750,000 to $800,000.
The property last sold on 15 April 2026 for an unknown price. It was sold by Fraemohs Homes NZ Ltd, and took 8 days to sell. On 1 September 2024, 34 Mondo Drive, Rolleston, 7614 had a Rating Valuation with a Capital Value of $780,000, Land Value of $315,000 and Improvement Value of $465,000.
| Date | Type | Price | Agent/Agency |
|---|---|---|---|
| 15 Apr 2026 | $0 | Pending Settlement Advice | |
| 8 Apr 2026 | ASKING PRICE | $799,000 | Sean Lally of Fraemohs Homes NZ Ltd |
| 28 Jan 2026 | SOLD | $782,000 | Sean Lally of Fraemohs Homes NZ Ltd |
| 14 Jan 2026 | ASKING PRICE | $799,000 | Sean Lally of Fraemohs Homes NZ Ltd |
| 13 Oct 2025 | ASKING PRICE | $799,000 | Sean Lally of Fraemohs Homes NZ Ltd |
| 13 Feb 2025 | SOLD | $302,608 |
There are no similar properties in the area that are listed for sale or recently sold.