
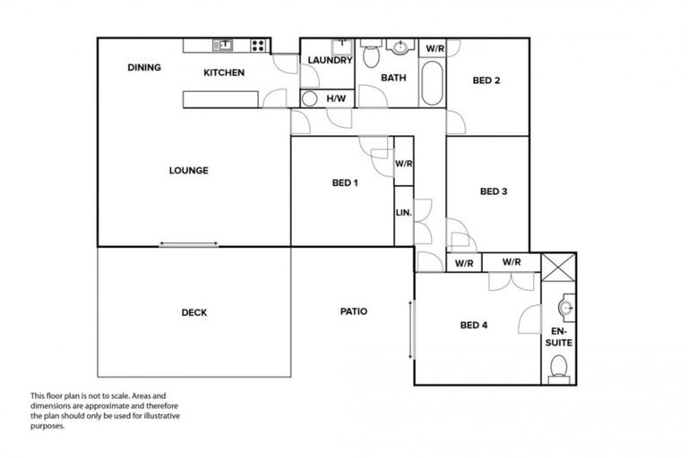
32 Shelley Street, Rolleston, 7614 is a Residential property built in 2005 with 4 bedrooms, 2 bathrooms and 1 parking space. The property is estimated to be valued in the range of $700,000 to $750,000.
The property last sold on 9 January 2007 for $316,000. On 1 September 2024, 32 Shelley Street, Rolleston, 7614 had a Rating Valuation with a Capital Value of $680,000, Land Value of $600,000 and Improvement Value of $80,000.
| Date | Type | Price | Agent/Agency |
|---|---|---|---|
| 5 Aug 2023 | Rented | $580 | Fiona Morland of My Property Manager |
| 7 Jul 2021 | Rented | $500 | Fiona Morland of My Property Manager |
| 13 Mar 2019 | BY NEGOTIATION | Price Not Disclosed | Mike Mancer of Watson Real Estate Ltd Palmerston North Licensed: Reaa 2008 |
| 9 Jan 2007 | SOLD | $316,000 | |
| 5 Nov 2005 | SOLD | $276,000 | |
| 2 Jun 2005 | DEADLINE PRIVATE TREATY | Price Not Disclosed | Kelvin Howell of Ray White A J McPherson & Assoc Church Corner |
| 29 Mar 2001 | SOLD | $165,000 | |
| 30 Jun 2000 | SOLD | $49,500 |
Lot 4 Deposited Plan 70048
There are no similar properties in the area that are listed for sale or recently sold.