
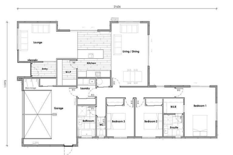
29 Harlequin Drive, Rolleston, 7614 is a Residential property built in 2026 with 3 bedrooms, 2 bathrooms and 2 parking spaces. The property is estimated to be valued in the range of $800,000 to $900,000.
The property last sold on 11 March 2026 for an unknown price. It was sold by Fraemohs Homes NZ Ltd, and took 57 days to sell. On 1 September 2024, 29 Harlequin Drive, Rolleston, 7614 had a Rating Valuation with a Capital Value of $860,000, Land Value of $330,000 and Improvement Value of $530,000.
| Date | Type | Price | Agent/Agency |
|---|---|---|---|
| 11 Mar 2026 | $0 | Pending Settlement Advice | |
| 14 Jan 2026 | ASKING PRICE | $829,000 | Sean Lally of Fraemohs Homes NZ Ltd |
| 15 Oct 2025 | ASKING PRICE | $829,000 | Sean Lally of Fraemohs Homes NZ Ltd |
| 7 Apr 2025 | SOLD | $295,652 |
Lot 691 Deposited Plan 614255
There are no similar properties in the area that are listed for sale or recently sold.