
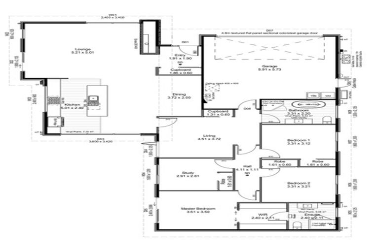
50 Cassidy Avenue, Lincoln, 7608 is a Residential property built in 2018 with 4 bedrooms, 2 bathrooms and 2 parking spaces. The property is estimated to be valued in the range of $800,000 to $900,000.
The property last sold on 25 January 2017 for $200,000. On 1 September 2024, 50 Cassidy Avenue, Lincoln, 7608 had a Rating Valuation with a Capital Value of $840,000, Land Value of $360,000 and Improvement Value of $480,000.
| Date | Type | Price | Agent/Agency |
|---|---|---|---|
| 13 Jun 2022 | ASKING PRICE | $1,100,000 | |
| 25 Jan 2017 | SOLD | $200,000 |
Lot 74 Deposited Plan 482481
There are no similar properties in the area that are listed for sale or recently sold.