
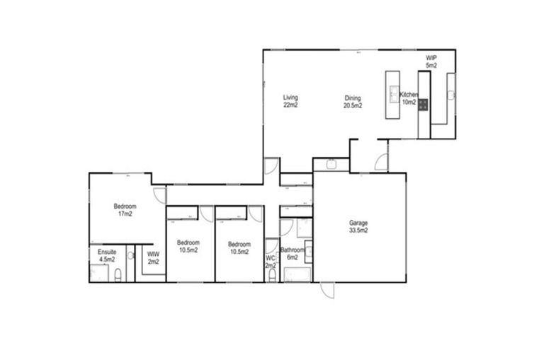
46 Zabeel Street, Lincoln, 7608 is a Residential property built in 2020 with 3 bedrooms, 2 bathrooms and 2 parking spaces. The property is estimated to be valued in the range of $800,000 to $900,000.
The property last sold on 4 September 2024 for $877,000. It was sold by Najib Real Estate Ltd, (Licensed: Reaa 2008), and took 17 days to sell. On 1 September 2024, 46 Zabeel Street, Lincoln, 7608 had a Rating Valuation with a Capital Value of $830,000, Land Value of $360,000 and Improvement Value of $470,000.
| Date | Type | Price | Agent/Agency |
|---|---|---|---|
| 4 Sep 2024 | SOLD | $877,000 | |
| 19 Aug 2024 | BY NEGOTIATION | Price Not Disclosed | Sha Jega of Najib Real Estate Ltd, (Licensed: Reaa 2008) |
| 3 May 2019 | SOLD | $195,000 |
Lot 404 Deposited Plan 535412
There are no similar properties in the area that are listed for sale or recently sold.