
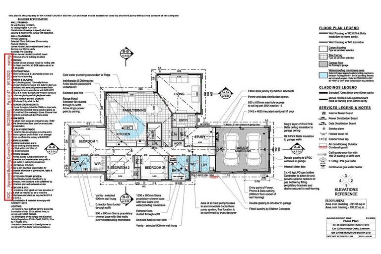
22 Da Vinci Avenue, Leeston, 7632 is a Residential property built in 2024 with 4 bedrooms, 2 bathrooms and 2 parking spaces. The property is estimated to be valued in the range of $750,000 to $800,000.
It is unknown when the property was last sold or how much it was sold for. On 1 September 2024, 22 Da Vinci Avenue, Leeston, 7632 had a Rating Valuation with a Capital Value of $730,000, Land Value of $250,000 and Improvement Value of $480,000.
| Date | Type | Price | Agent/Agency |
|---|---|---|---|
| 6 Mar 2024 | Rented | $670 | Myrent.Co.Nz of Myrent.Co.NZ Ltd |
| 30 Nov 2021 | SOLD | $330,000 | |
| 18 Nov 2021 | SOLD | $265,217 |
Lot 21 Deposited Plan 595414
There are no similar properties in the area that are listed for sale or recently sold.