
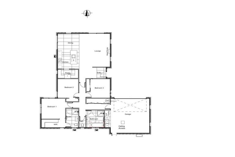
54 Suffolk Drive, Kirwee, 7571 is a Residential property built in 2024 with 3 bedrooms, 2 bathrooms and 2 parking spaces. The property is estimated to be valued in the range of $750,000 to $800,000.
The property last sold on 15 March 2024 for $745,000. It was sold by Property Brokers Darfield, (Licensed: Reaa 2008), and took 155 days to sell. On 1 September 2024, 54 Suffolk Drive, Kirwee, 7571 had a Rating Valuation with a Capital Value of $730,000, Land Value of $280,000 and Improvement Value of $450,000.
| Date | Type | Price | Agent/Agency |
|---|---|---|---|
| 12 Jan 2026 | Rented | $650 | Candice McAnelly of Holmwood Property Management |
| 15 Mar 2024 | SOLD | $745,000 | |
| 13 Oct 2023 | ENQUIRIES OVER | $735,000 | Gareth Cox of Property Brokers Darfield, (Licensed: Reaa 2008) |
Lot 83 Deposited Plan 583701
There are no similar properties in the area that are listed for sale or recently sold.