
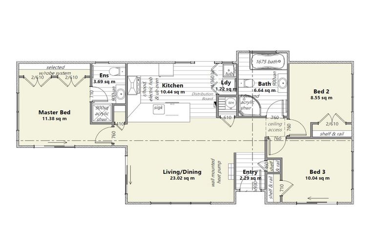
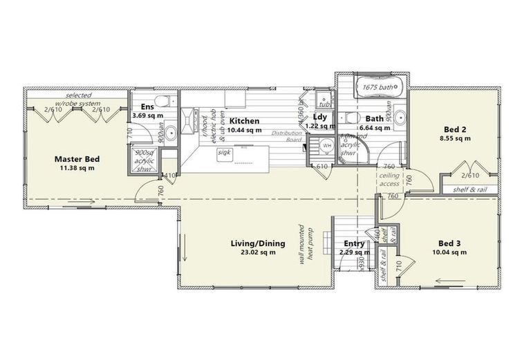
9a Temple Drive, Twizel, 7901 is a Residential property built in 2018 with 3 bedrooms, 2 bathrooms and 2 parking spaces. The property is estimated to be valued in the range of $800,000 to $900,000.
The property last sold on 15 May 2023 for $800,000. On 1 July 2023, 9a Temple Drive, Twizel, 7901 had a Rating Valuation with a Capital Value of $750,000, Land Value of $345,000 and Improvement Value of $405,000.
| Date | Type | Price | Agent/Agency |
|---|---|---|---|
| 15 May 2023 | SOLD | $800,000 | |
| 2 Aug 2022 | ENQUIRIES OVER | $835,000 | Karan Macdiarmid of LJ Hooker Twizel |
| 2 Oct 2017 | SOLD | $165,000 |
Lot 24 Deposited Plan 523429
There are no similar properties in the area that are listed for sale or recently sold.