
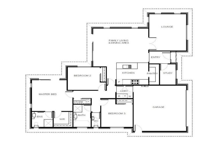
52 Hilton Drive, Amberley, 7410 is a Residential property built in 2024 with 3 bedrooms, 2 bathrooms and 2 parking spaces. The property is estimated to be valued in the range of $800,000 to $900,000.
The property last sold on 20 September 2023 for $785,000. It was sold by Harcourts Four Seasons Realty 2017 Ltd Rangiora, (Licensed: Reaa 2008), and took 55 days to sell. On 1 July 2025, 52 Hilton Drive, Amberley, 7410 had a Rating Valuation with a Capital Value of $785,000, Land Value of $240,000 and Improvement Value of $545,000.
| Date | Type | Price | Agent/Agency |
|---|---|---|---|
| 20 Sep 2023 | SOLD | $785,000 | |
| 28 Jul 2023 | BY NEGOTIATION | Price Not Disclosed | Victoria Thompson of Harcourts Four Seasons Realty 2017 Ltd Rangiora, (Licensed: Reaa 2008) |
Lot 216 Deposited Plan 576011
There are no similar properties in the area that are listed for sale or recently sold.