
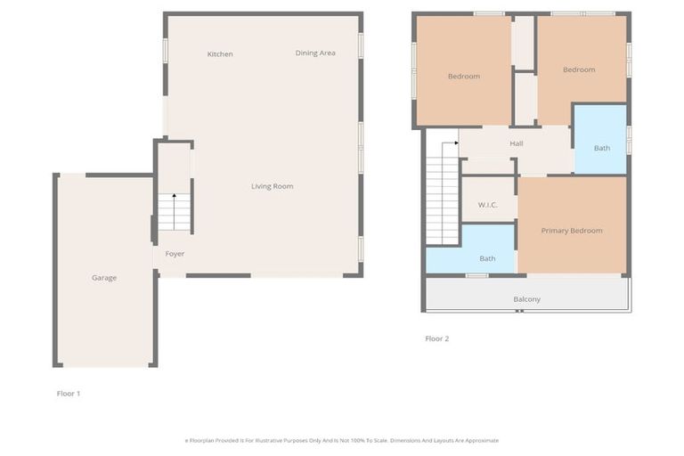
1/92 Holly Road, St Albans, Christchurch, 8014 is a Residential property built in 2026 with 3 bedrooms, 2 bathrooms and 1 parking space. The property is estimated to be valued in the range of $1,200,000 to $1,300,000.
It is unknown when the property was last sold or how much it was sold for. On 1 August 2025, 1/92 Holly Road, St Albans, Christchurch, 8014 had a Rating Valuation with a Capital Value of $1,170,000, Land Value of $540,000 and Improvement Value of $630,000.
| Date | Type | Price | Agent/Agency |
|---|---|---|---|
| 10 Nov 2025 | ASKING PRICE | $1,280,000 | Scott Muirson of SM Property - New Build Real Estate Limited, (Licensed: Reaa 2008) |
| 24 Jun 2021 | SOLD | $900,000 | |
| 20 May 2017 | SOLD | $650,000 | |
| 15 Jun 2007 | SOLD | $480,000 | |
| 26 Mar 2003 | SOLD | $235,000 | |
| 23 Jan 1992 | SOLD | $158,000 | |
| 13 May 1991 | SOLD | $150,000 | |
| 19 Nov 1986 | SOLD | $92,000 | |
| 14 Jun 1986 | SOLD | $70,000 | |
| 29 Jan 1982 | SOLD | $38,000 | |
| 4 Jun 1981 | SOLD | $31,500 | |
| 16 Mar 1981 | SOLD | $21,000 |
There are no similar properties in the area that are listed for sale or recently sold.