
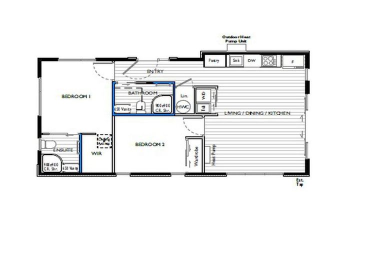
4/36 Harker Street, Spreydon, Christchurch, 8024 is a Residential property built in 2025 with 2 bedrooms, 2 bathrooms and 1 parking space. The property is estimated to be valued in the range of $550,000 to $600,000.
It is unknown when the property was last sold or how much it was sold for. On 1 August 2025, 4/36 Harker Street, Spreydon, Christchurch, 8024 had a Rating Valuation with a Capital Value of $560,000, Land Value of $270,000 and Improvement Value of $290,000.
| Date | Type | Price | Agent/Agency |
|---|---|---|---|
| 21 Oct 2025 | ASKING PRICE | $575,000 | Emily Ives of Freedom Built |
There are no similar properties in the area that are listed for sale or recently sold.