
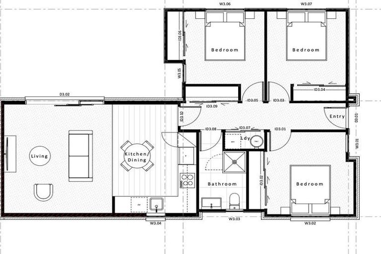
3/149 Strickland Street, Spreydon, Christchurch, 8024 is a Residential property built in 2025 with 3 bedrooms, 1 bathroom and 1 parking space. The property is estimated to be valued in the range of $650,000 to $700,000.
It is unknown when the property was last sold or how much it was sold for. On 1 August 2025, 3/149 Strickland Street, Spreydon, Christchurch, 8024 had a Rating Valuation with a Capital Value of $650,000, Land Value of $270,000 and Improvement Value of $380,000.
| Date | Type | Price | Agent/Agency |
|---|---|---|---|
| 16 Oct 2025 | Rented | $600 | Fiona Morland of My Property Manager |
There are no similar properties in the area that are listed for sale or recently sold.