
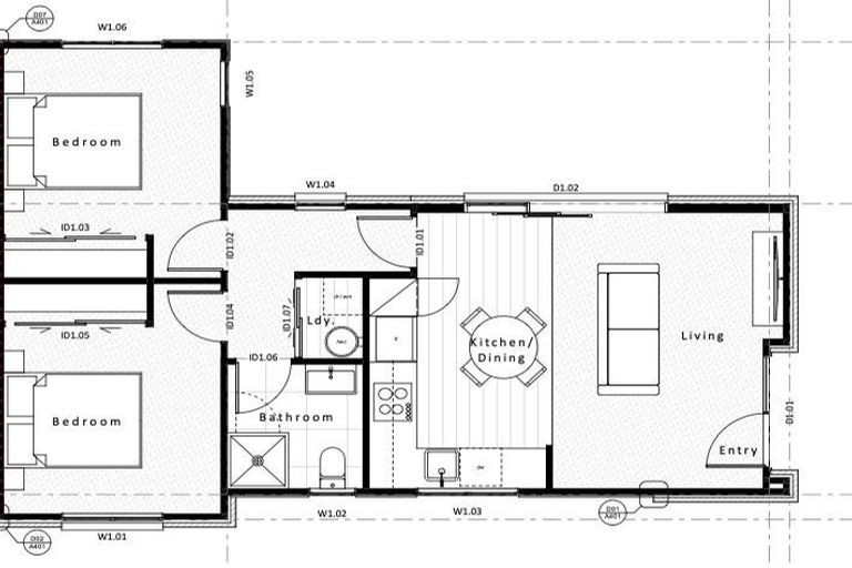
2/149 Strickland Street, Spreydon, Christchurch, 8024 is a Residential property built in 2025 with 2 bedrooms, 1 bathroom and 1 parking space. The property is estimated to be valued in the range of $550,000 to $600,000.
The property last sold on 6 December 2024 for $685,250. On 1 August 2025, 2/149 Strickland Street, Spreydon, Christchurch, 8024 had a Rating Valuation with a Capital Value of $560,000, Land Value of $270,000 and Improvement Value of $290,000.
| Date | Type | Price | Agent/Agency |
|---|---|---|---|
| 16 Oct 2025 | Rented | $520 | Fiona@Mypm.Co.Nz of My Property Manager |
| 6 Dec 2024 | SOLD | $685,250 | |
| 13 Apr 1989 | SOLD | $60,000 | |
| 14 May 1983 | SOLD | $36,500 | |
| 7 Mar 1981 | SOLD | $26,000 |
There are no similar properties in the area that are listed for sale or recently sold.