
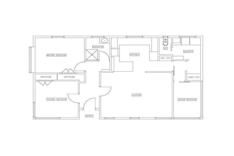
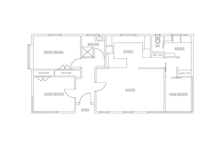
167 Milton Street, Somerfield, Christchurch, 8024 is a Residential property built in 1920 with 3 bedrooms, 1 bathroom and 0 parking spaces. The property is estimated to be valued in the range of $600,000 to $650,000.
The property last sold on 31 May 2021 for $538,000. It was sold by Mike Pero Real Estate - Cashmere. On 1 August 2025, 167 Milton Street, Somerfield, Christchurch, 8024 had a Rating Valuation with a Capital Value of $610,000, Land Value of $360,000 and Improvement Value of $250,000.
| Date | Type | Price | Agent/Agency |
|---|---|---|---|
| 10 Dec 2024 | Rented | $575 | Elishea Lennon of Fraser Flynn Property Management |
| 12 Jun 2024 | Rented | $575 | Elishea Lennon of Fraser Flynn Property Management |
| 14 Apr 2023 | Rented | $565 | Elishea Lennon of Fraser Flynn Property Management |
| 26 Jan 2023 | Rented | $565 | Jack Fraser of Fraser Flynn Property Management |
| 31 May 2021 | SOLD | $538,000 | |
| 20 May 2021 | BY NEGOTIATION | Price Not Disclosed | Chris Day of Mike Pero Real Estate - Cashmere, (Licensed: Reaa 2008) |
| 12 Sep 2013 | SOLD | $243,000 | |
| 19 May 2008 | SOLD | $169,000 | Alison Aldridge of Harcourts Grenadier Real Estate |
| 8 Mar 2008 | DEADLINE PRIVATE TREATY | $215,000 | Alison Aldridge of Harcourts Grenadier Real Estate |
| 17 Sep 1981 | SOLD | $22,000 | |
| 21 Jan 1980 | SOLD | $12,000 |
Lot 5 Deposited Plan 283
There are no similar properties in the area that are listed for sale or recently sold.