
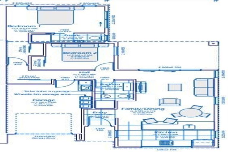
46 Manakura Street, Russley, Christchurch, 8042 is a Residential property built in 2019 with 3 bedrooms, 2 bathrooms and 2 parking spaces. The property is estimated to be valued in the range of $800,000 to $900,000.
The property last sold on 14 December 2017 for $240,000. On 1 August 2025, 46 Manakura Street, Russley, Christchurch, 8042 had a Rating Valuation with a Capital Value of $800,000, Land Value of $340,000 and Improvement Value of $460,000.
| Date | Type | Price | Agent/Agency |
|---|---|---|---|
| 14 Dec 2017 | SOLD | $240,000 |
Lot 18 Deposited Plan 518068
There are no similar properties in the area that are listed for sale or recently sold.