
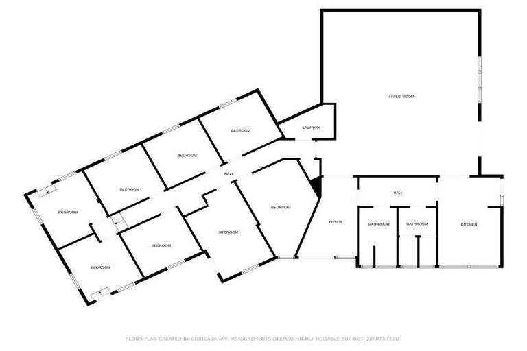
7 Centennial Avenue, Riccarton, Christchurch, 8041 is a Residential property built in 1947 with 5 bedrooms, 2 bathrooms and 1 parking space. The property is estimated to be valued in the range of $1,100,000 to $1,200,000.
The property last sold on 11 December 2024 for $1,080,000. It was sold by Holmwood Real Estate Ltd Merivale, (Licensed: Reaa 2008), and took 22 days to sell. On 1 August 2025, 7 Centennial Avenue, Riccarton, Christchurch, 8041 had a Rating Valuation with a Capital Value of $1,070,000, Land Value of $660,000 and Improvement Value of $410,000.
| Date | Type | Price | Agent/Agency |
|---|---|---|---|
| 16 Aug 2025 | Rented | $1,640 | Quinovic Riccarton of Quinovic Riccarton |
| 21 Dec 2024 | Rented | $1,520 | Quinovic Riccarton of Quinovic Riccarton |
| 11 Dec 2024 | SOLD | $1,080,000 | |
| 20 Nov 2024 | ASKING PRICE | Price Not Disclosed | Jamin Marshall of Holmwood Real Estate Ltd Merivale, (Licensed: Reaa 2008) |
| 29 Jul 2022 | Rented | $1,200 | |
| 11 Aug 2021 | Rented | $1,200 | |
| 15 Sep 2020 | Rented | $1,200 | |
| 10 Sep 2020 | SOLD | $775,000 | |
| 30 Oct 2017 | ASKING PRICE | $765,000 | Gill Knight of Whittle Knight & Boatwood Mreinz |
| 23 Sep 2009 | SOLD | $350,000 | |
| 30 Mar 2007 | SOLD | $350,000 |
Lot 273 Deposited Plan 15008 and Part Lot 282 Deposited Plan 15064
There are no similar properties in the area that are listed for sale or recently sold.