
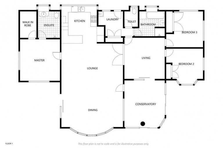
166 Queenspark Drive, Parklands, Christchurch, 8083 is a Residential property built in 1990 with 3 bedrooms, 2 bathrooms and 2 parking spaces. The property is estimated to be valued in the range of $700,000 to $750,000.
The property last sold on 10 February 2022 for $702,000. It was sold by Tall Poppy Christchurch North, and took 12 days to sell. On 1 August 2025, 166 Queenspark Drive, Parklands, Christchurch, 8083 had a Rating Valuation with a Capital Value of $670,000, Land Value of $365,000 and Improvement Value of $305,000.
| Date | Type | Price | Agent/Agency |
|---|---|---|---|
| 10 Feb 2022 | SOLD | $702,000 | |
| 30 Jan 2022 | ENQUIRIES OVER | $645,000 | Kristian Danholt of Tall Poppy Christchurch North |
| 24 Jan 1994 | SOLD | $47,000 | |
| 10 Nov 1992 | SOLD | $45,000 | |
| 31 Aug 1990 | SOLD | $130,000 | |
| 18 Jun 1990 | SOLD | $90,000 | |
| 16 Mar 1989 | SOLD | $55,000 | |
| 2 Apr 1984 | SOLD | $32,000 |
Lot 3 Deposited Plan 58227
There are no similar properties in the area that are listed for sale or recently sold.