
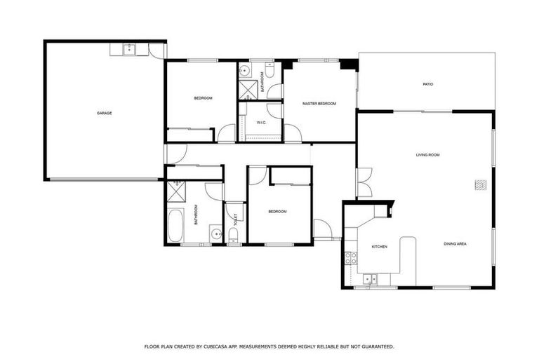
10 Limes Avenue, Parklands, Christchurch, 8083 is a Residential property built in 2000 with 3 bedrooms, 2 bathrooms and 2 parking spaces. The property is estimated to be valued in the range of $800,000 to $900,000.
The property last sold on 5 October 2024 for $765,000. It was sold by Griffioen. (Powered By Ownly), (Licensed: Reaa 2008), and took 24 days to sell. On 1 August 2025, 10 Limes Avenue, Parklands, Christchurch, 8083 had a Rating Valuation with a Capital Value of $760,000, Land Value of $415,000 and Improvement Value of $345,000.
| Date | Type | Price | Agent/Agency |
|---|---|---|---|
| 5 Oct 2024 | SOLD | $765,000 | |
| 12 Sep 2024 | ASKING PRICE | Price Not Disclosed | Caleb Griffioen of Griffioen. (Powered By Ownly), (Licensed: Reaa 2008) |
| 15 Feb 2018 | SOLD | $528,000 | Bronwyn Williams of A J McPherson & Associates Ltd Ray White, Metro Licensed: Reaa 2008 |
| 23 Jan 2018 | BY NEGOTIATION | Price Not Disclosed | Bronwyn Williams of A J McPherson & Associates Ltd Ray White, Metro Licensed: Reaa 2008 |
| 20 Feb 2003 | SOLD | $256,975 |
Lot 11 Deposited Plan 312984
There are no similar properties in the area that are listed for sale or recently sold.